오늘은 귀한 매물 소식 알려 드립니다. LH공사 홈페이지에서 따근 따끈한 소식 가져왔습니다. 바로 서울 강남, 서초 장기 전세주택 예비입주자 소식인데요.. 장기전세 주택은 최장 20년 동안 안전하게 거주가 가능한 시세보다 저렴한 전세계약 방식으로 공급하는 공공임대주택으로 요즘같이 전세사기 등으로 어려운 시기에 안전하게 주거를 보장받으실 수 있는 좋은 방안이 될 수 있습니다. 거기에 강남, 서초라니... 강남 서초 국민임대 장기전세주택 신청방법, 입주자격, 당첨발표 등 자세히 알려 드리도록 하겠습니다.

장기전세주택이란?
장기전세주택은 최대 20년의 범위에서 전세계약 방식으로 공급하는 분양전환 되지 않는 공공임대주택으로 시세의 60~80% 의 저렴한 임대료로 안전하게 장기 거주가 가능한 주택입니다.



입주자 선정 일정
서울 강남5단지 서초 3단지 장기전세주택 입주자 모집 일정입니다. 청약 신청을 하시려는 분들은 공급 유형과 순위 및 일정을 반드시 확인하시어 청약을 하시어 불이익이 없으시기 바랍니다.
입주자격 검증
장기전세주택 신청자는 무주택세대구성원으로서 소득 및 자산 보유 기준을 충족하여야 하며, 신청자와 해당 세대구성원 전원에 대하여 국토교통부 주택소유 확인시스템을 통하여 주택소유 여부, 보건복지부 사회보장정보시스템을 통하여 소득과 자산을 조회하여 입주자격 충족 여부를 검증 후 입주자로 선정합니다.
분양권·입주권(이하 ‘분양권등’)을 보유한 경우
「주택공급에 관한 규칙(국토교통부령 제565호, ‘18.12.11.)」에 따라 주택 소유자로 간주될 수 있으니 본 공고문의 ‘주택 소유여부 판정기준’을 반드시 확인하시기 바랍니다.
주택단지 개요 및 위치
주탹단지별 단지여견, 주변 교통 환경 등이 다리니 주택단지별 안내사항을 확인하시기 바랍니다.






모집대상 주택

서울 강남5단지는 10년 공공임대(419호), 10년 분납임대(550호), 장기전세(370호) 혼합단지입니다. 이 중 10년 공공 임대 및 10년 분납임대 주택의 90% 이상 조기 분양전환 되었습니다.
▪ 서울 서초3단지는 국민임대(440호), 영구임대(100호), 장기전세(250호) 혼합단지입니다.
▪ 주거전용면적은 주거의 용도로만 쓰이는 면적이며, 주거공용면적은 계단, 복도, 주현관 등 공동주택의 지상층에 있는 공용면적이며, 그 밖의 공용면적은 주거공용면적을 제외한 관리사무소, 경비초소, 지하층 등의 공용면적입니다.
▪ 금회 선정된 분은 향후 공가발생에 대비하여 모집하는 예비자로 실제 입주 까지는 상당기간이 소요될 수 있으며, 예비순번 도래 시 별도 계약체결 통보합니다.
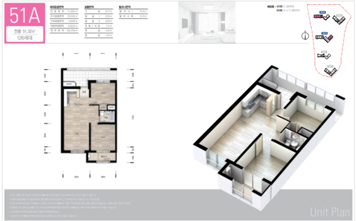
▪ 단지별 주택형별 평면도는 공고문과 별도로 안내하고 있으니, 참고하시기 바랍니다.
▪ 이 주택에 설치된 발코니는 주택공급면적에서 제외된 비주거공간으로 새시 설치에 따라 내ㆍ외부의 온도 및 습도 차이로 결로 현상이 발생될 수 있으므로 환기 등 예방조치를 취하여야 합니다.
임대조건

▪ 본 단지의 임대조건은 임대보증금으로만 구성되며, 임대보증금의 임대료 전환은 불가합니다.
▪ 임대보증금은 모집공고일 현재 기준이며, 예비입주자로 선정된 고객께서 임대차계약을 체결하는 시점에 당해 주택의 임대조건이 변경된 때에는 변경된 임대조건으로 계약하셔야 합니다.
▪ 동일 주택형에서 주거전용면적 등 세대당 계약면적이 다소 다를 수 있으나, 임대보증금은 주택형 별로 동일하게 적용합니다




신청자격
입주자모집공고일(2023.06.20) 현재 무주택세대구성원으로서 아래의 소득 및 자산보유 기준, 그 밖에 법에서 정한 요건 충족 및 입주자격제한(불법양도·전대)에 해당하지 않는 사람 (단, 모집공고일로부터 입주 시까지 무주택세대구성원을 유지해야 하며, 무주택세대구성원을 유지하지 않을 경우 당첨 취소 및 계약거절 등의 불이익을 받을 수 있으니 이점 유의하시기 바랍니다.)
무주택세대구성원이란

■ 단독세대주 제한
• 단독세대주는 본인의 세대별 주민등록표등본상에 세대구성원이 없는 자를 말하며, 전용면적 40㎡이하 주택만 신청할 수 있습니다. (단독세대주는 강남5단지 23형만 신청할 수 있습니다.)
- 「장애인 고용촉진 및 직업 재활법」 제2조에 따른 중증장애인은 단독세대주임에도 불구하고 전용면적 50㎡미만까지 신청가능
• 단, 단독세대주 중 주민등록표등본의 구성이 ① 혼인 중이 아닌 미성년 형제, 자매(단, 부모의 사망, 실종, 행방불명 등의 사실이 확인된 경우에 한함) ② 혼인신고를 완료하여 가족관계등록부에 등재되고 신청자의 주민등록표에 함께 기재되어 있는 외국인 배우자 ③ 임신 중인 단독세대주로 되어 있는 경우는 예외적으로 전용면적 40㎡ 초과주택 신청 가능 합니다.
* 위 경우에 해당하여 40㎡초과 주택을 신청하는 경우, 주민등록표등본 구성원은 전원 무주택 요건을 충족하여야 합니다.
• 세대구성원이 신청자와 등본 상 분리된 배우자 총 2명인 경우 단독세대주로서 전용면적 40㎡초과 신청 불가합니다.
■ 불법전대자 입주자격 제한 불법양도·전대자 재입주 금지 규정(공공주택 특별법 시행규칙 제36조의2)에 따라 신청자의 세대구성원 중에 과거에 공공임대주택 임차인으로서 불법양도·전대 행위로 적발된 후 4년이 경과되지 않은 자가 있는 경우 신청자는 공공임대 주택 입주자로 선정 불가)
소득 및 자산보유 기준

50㎡미만
해당 세대의 월평균소득액이 전년도 도시근로자 가구원수별 가구당 월평균소득의 50%(1인가구인 경우 70%. 2인 가구인 경우 60%) 이하인 세대에게 우선 공급하며, 남은 주택이 있을 경우 가구원수별 가구당 월평균소득의 100%(1인가구인 경우 120%, 2인가구인 경우 110%) 이하인 세대에게 공급
50㎡이상~60㎡이하
해당 세대의 월평균소득액이 전년도 도시근로자 가구원수별 가구당 월평균소득의 70%(1인가구인 경우 90%. 2인 가구인 경우 80%)이하인 세대에게 우선 공급하며, 남은 주택이 있을 경우 가구원수별 가구당 월평균소득의 100%(1인가구인 경우 120%, 2인가구인 경우 110%) 이하인 세대에게 공급
공급일정

▪ 예비입주자 당첨발표 결과는 입주자격검증 일정에 따라 예정일보다 앞당겨지거나 미뤄질 수 있습니다.
▪ 신청순위별로 신청접수일이 서로 다르며, 신청접수일별로 신청순위에 해당하시는 분만 신청이 가능합니다.
▪ 해당순위 접수 결과 신청자가 모집할 예비입주자수를 초과하는 때에는 후순위 접수는 받지 아니하며, 후순위 접수여부는 해당순위 접수마감일 20:00 이후에 LH 청약센터에 게시합니다.
** 확인방법 : LH 청약센터(https://apply.lh.or.kr) → 상단의 『분양정보』 → 활성창 오른쪽 상단 『공지사항』클릭 → 임대주택(장기전세)선택
▪ 인터넷/모바일 신청 서류제출 대상자 발표
** 확인방법 : LH청약센터(https://apply.lh.or.kr) → 상단 『인터넷청약』 클릭 → 활성창 오른쪽 아래 『서류제출 대상자조회(임대주택)』 클릭
▪ 서류제출대상자 서류제출은 등기우편으로 제출하여 주시기 바라며, 서류제출 후 수신여부 확인은 다량의 우편 물을 정리하기까지 시일이 소요되므로 우체국홈페이지/배송조회나 우체국콜센터(1588-1300)에서 등기번호로 조회하시기 바랍니다.
▪ 서류제출대상자는 순위 및 배점에 따라서 모집호수의 통상 1.5~2배수가 선정되며, 자격검증 후에 적격자가 모집인원 초과 시 배점이 낮은 신청자는 탈락할 수 있습니다.
신청순위

신청방법
신청은 대가와 혼잡을 방지하기 위하여 현장 접수는 받지 않고 인터넷 및 모바일을 통해서만 신청이 가능합니다.
(단, 65세 이상 고령자 및 장애인 등 정보취약계층에 한하여 현장접수 가능, 방분 시 반드시 제출서류를 지참하여야 함)
인터넷 신청방법

모바일 신청방법

입주자 선정방법


■ 당첨자 발표
• 예비입주자 당첨 명단은 LH 청약센터 홈페이지((https://apply.lh.or.kr)와 ARS(1661-7700)를 통해 당첨 발표일로부터 30일간 확인할 수 있으며, 당첨 사실을 확인하지 못하여 계약 체결을 못한 경우의 책임은 신청자 본인에게 있습니다.
(당첨명단 조회방법 : LH 청약센터 → 당첨자조회)
■ 계약안내
• 현재 대기 중인 예비입주자가 없는 경우 당첨 발표 후 우리공사의 안내에 따라 즉시 계약이 가능할 수 있습니다.
• 이번에 모집하는 예비입주자는 현재 대기 중인 예비입주자가 있는 경우 그다음으로 입주 예비순번이 결정되며, 입주자 퇴거 등으로 공가주택이 발생할 때 입주 예비순번에 따라 공급되며 선호하지 않는 동호가 배정될 수 있습니다.
선순위 예비입주자의 임대차계약 결과에 따라 변경되는 예비입주자의 입주 예비순번은 공사 홈페이지에서 확인가능
※ 예비입주자순위 조회방법
공사홈페이지 → 청약센터 → 고객서비스 → 예비입주자순위조회 or ARS(1661-7700) → 3번(예비입주자 순번조회)
• 예비입주자에 대한 임대차계약 및 입주안내는 등기우편으로 통보해드리니, 당첨 후 주소 및 전화번호 변동이 있을 때 에는 반드시 공사 LH청약센터(예비입주자 개인정보 변경)에서 변경하여야 합니다.
• 예비입주자가 주소 변동사항을 우리공사에 통보하지 아니하여 임대차계약 및 입주안내 등기우편을 송달받지 못하고 임대차계약 기회 및 예비입주자 자격을 상실하는 경우 그 책임은 전적으로 본인에게 있습니다.









최근댓글